O mně
Realizace
Kontakt
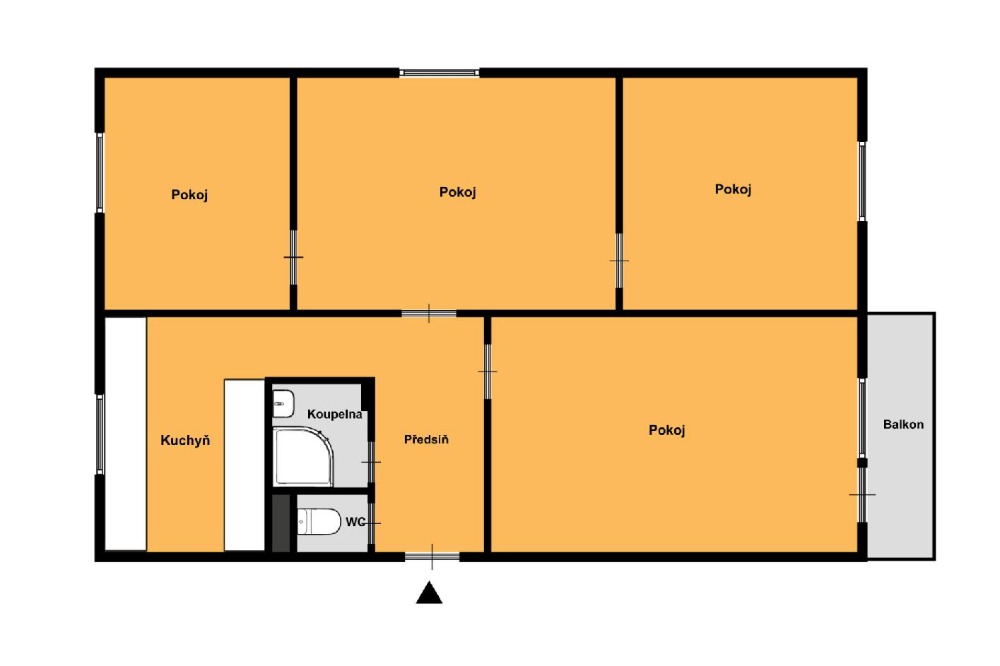
4+1 Frýdek-Místek, 28. října
4+1
1 150 000,-